
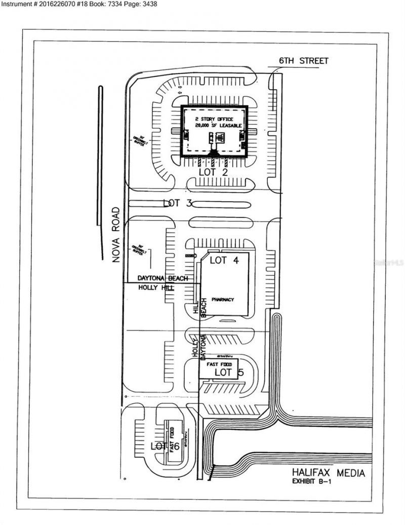
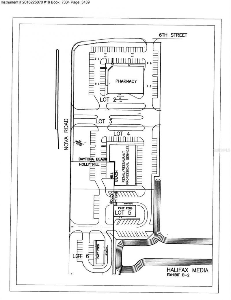
Nearly two-acre lot located at the corner of 6th Street and Nova Rd (SR 5A) in Daytona Beach. Adjacent to the former Daytona Beach News Journal building. Neighboring properties include Davita Kidney Care, Community Pharmacy, Domino's Pizza and CAN Community Health. Approximately 315' of frontage on 6th Street and 220' of frontage on Nova Rd. Shared access road from Nova Rd is in place. See attached Survey for details.Zoned PD-G (Planned Development - General) which would allow retail, service, g...Nearly two-acre lot located at the corner of 6th Street and Nova Rd (SR 5A) in Daytona Beach. Adjacent to the former Daytona Beach News Journal building. Neighboring properties include Davita Kidney Care, Community Pharmacy, Domino's Pizza and CAN Community Health. Approximately 315' of frontage on 6th Street and 220' of frontage on Nova Rd. Shared access road from Nova Rd is in place. See attached Survey for details.Zoned PD-G (Planned Development - General) which would allow retail, service, gas station, convenience store, restaurant, medical, shopping center, etc. See attached Ordinance 16-294 for details.FDOT AADT 31,000 on N Nova Rd.Owner would also consider a land lease at $120K/year for a qualified tenant.
View MoreCourtesy of
Agency Name: WATSON REALTY CORP
Agency Contact: 386-246-9222
Agent Name: Carol Carroll
Presented by
Agent Name: Lisette Fernandez-Rocha
Agent Phone: 305.733.6612
Agency Title: The Keyes Company
Send an email with a link to
945 6th Street, Daytona Beach, FL 32117.
Email 945 6th Street, Daytona Beach, FL 32117
Thank you for your inquiry! As a thank you, we have a Special Mortgage Offer for You.
We would like to provide you a free, no-obligation, home loan pre-approval review.